Nec Load Calculation Worksheet Excel

Are you in need of a simple and efficient way to calculate NEC load in Excel? Look no further! With our easy-to-use NEC load calculation worksheet, you’ll be able to determine the electrical load requirements for your project in no time.

Whether you’re an electrical contractor, engineer, or DIY enthusiast, having a reliable tool to help you with load calculations is essential. Our Excel worksheet is designed to streamline the process and provide accurate results for your electrical projects.

nec load calculation worksheet excel

nec load calculation worksheet excel

The Benefits of Using a NEC Load Calculation Worksheet in Excel

One of the key advantages of using our NEC load calculation worksheet in Excel is its user-friendly interface. Simply input the required data, and the worksheet will automatically generate the load calculations for you.

Another benefit is the flexibility and customization options available. You can easily adjust parameters and variables to suit your specific project requirements, making it a versatile tool for a wide range of electrical applications.

By utilizing our NEC load calculation worksheet in Excel, you can save time and effort on manual calculations, allowing you to focus on other aspects of your project. Plus, the accuracy of the results will give you peace of mind knowing that your electrical system meets the necessary requirements.

In conclusion, our NEC load calculation worksheet in Excel is a valuable tool for anyone involved in electrical projects. With its ease of use, flexibility, and accuracy, you can rely on it to simplify the load calculation process and ensure the success of your projects.

Electrical Commercial Project Calculation Excel File 10 04 12 YouTube

Electrical Commercial Project Calculation Excel File 10 04 12 YouTube

Electrical Load Calculation Sheet Worksheets Library

Electrical Load Calculation Sheet Worksheets Library

Residential Load Calculation Spreadsheet Eloquens

Residential Load Calculation Spreadsheet Eloquens

Commercial Electrical Load Calculation Worksheet Excel Fill Out Sign Online DocHub

Commercial Electrical Load Calculation Worksheet Excel Fill Out Sign Online DocHub

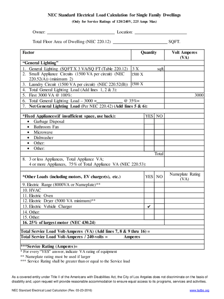
2016 2025 Form NEC Standard Electrical Load Calculation For Single Family Dwellings Fill Online Printable Fillable Blank PdfFiller

2016 2025 Form NEC Standard Electrical Load Calculation For Single Family Dwellings Fill Online Printable Fillable Blank PdfFiller

Leave a Comment